
Neuer Kinder- & Jugendtreff
In der Johannesstraße im Zentrum von Sundern soll eine neue Jugendeinrichtung entstehen. Diese soll das “Gammon” in Sundern ersetzen. Die derzeitigen Angebote für junge Menschen in Sundern sollen erhalten und erweitert werden.
Der Verein zur Förderung der Jugendhilfe in Sundern e.V. widmet sich in Kooperation mit der Stadt Sundern genau diesen Themen.
- Kinder, Jugendliche & Familien willkommen heißen
- Gemeinschaft stärken – Raum für Austausch und Begegnung schaffen
- Bildung, Beratung und Beteiligung ermöglichen
- Sundern attraktiv für junge Menschen machen
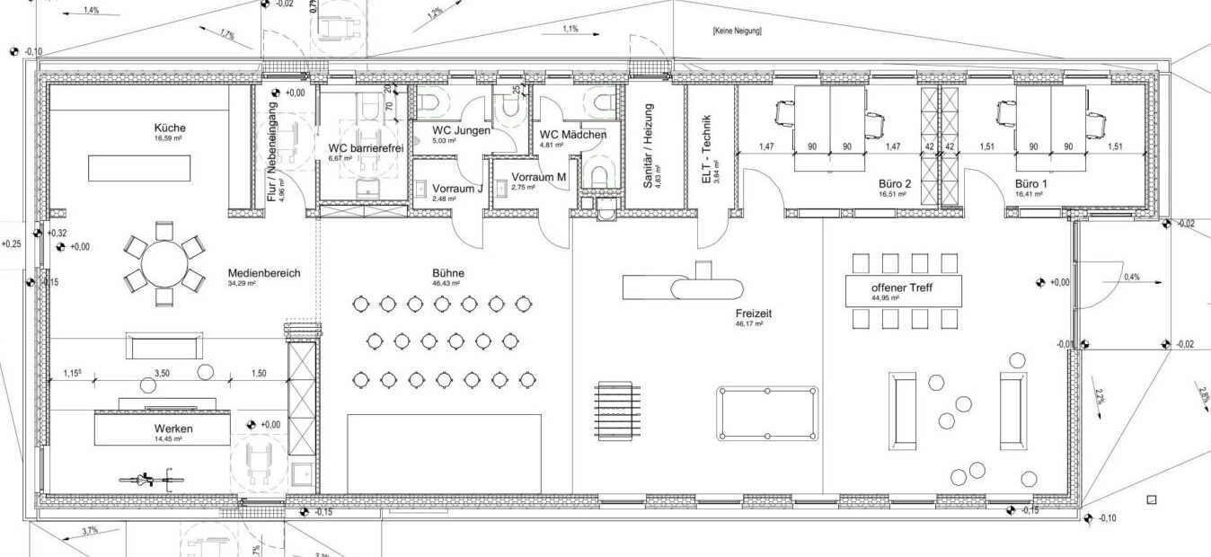
300 m² Nutzfläche
- Multifunktionsraum mit
- Eingangsbereich
- Freizeitbereich für Spielgeräte wie z.B. Airhockey-Tisch, Kicker, Billardtisch und Dartscheibe
- Eventbereich
- Küche
- Ruhe-/ Kreativ- und Medienraum
- Sanitärtanlagen
- zwei Büros für Mitarbeitende

Der Verein
Zur offiziellen Internetseite des Vereins:
Sie möchten das Projekt unterstützen?
Dann werden Sie Teil davon.
Die Initiative einsU hat beispielsweise eine großzügige Spende zugesagt und wird den “Grundstein” legen, indem sie die Bodenplatte finanziert.
Auf dem eigens für das Projekt angelegten Spendenkonto des Vereins zur Förderung der Jugendhilfe in Sundern e.V. ist Ihre Spende sicher und zweckbestimmt aufgehoben.
Spendenkonto: Sparkasse Mitten im Sauerland / DE33 4665 0005 0160 0019 96


